- 賃料
- 13.2万円
- 事務所
- 敷金
- 39.6万円
- 礼金
- 13.2万円
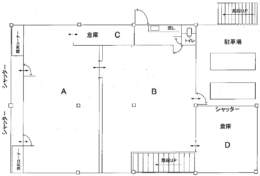
| 所在地 | 岡山県倉敷市水島東栄町 倉敷市水島東栄町倉庫付き貸し事務所13.2万円 |
|---|---|
| 交通 | 水島臨海鉄道栄駅 徒歩250m 徒歩4分 |
| 築年月 | 1965/1 | 新築/中古 | 中古 |
|---|---|---|---|
| 面積 | 計測方式 | ||
| バルコニー | 向き | ||
| 建物階数 | 地上2階 | 部屋階数 | 2階 |
| 建物構造 | 鉄骨造 | ||
| 間取内容 | | ||
| 駐車場 | 空有 2台 | 取引態様 | 一般 |
| 引渡/入居時期 | 期日指定 2026/3 下旬 | 現況 | 空家 |
| 周辺環境 | |||
| 設備・条件 | トイレ専用 都市ガス 公営水道 排水下水 駐車場有 駐輪場 バイク置き場 | ||
| 物件番号 | tkh001 | ||
| 自社物 | 状態 | 空有 | |
★2026年2月末以降~入居可能★1階全部・2階倉庫部分☆最適用途:事務所、美容院等(飲食店以外)☆
・火災保険2年間2万円
・家賃保証有り(実費)
・鍵交換代実費
・エアコンは調子が悪いです。
・飲食店以外での賃借
※2階の半分は別の人が住んでいます。
内覧等をご希望の方は、086-425-5505または080-1928-8211までにお電話ください。
メールアドレスは、info@nissho1.jpです。
現地に待機しておりませんが、事前にご連絡くださればご案内可能です。土日祝または平日でもご案内可能です。ご連絡お待ちしております。
Loading...
※物件掲載内容と現況に相違がある場合は現況を優先と致します。














