ミサワホーム施工5LDK!内外装・水回りリフォーム済!JR山陽本線「東岡山」駅まで徒歩14分!敷地内3~4台駐車可、角地で日当たり良好!
- 価格
- 2,980万円
- 中古戸建
- 間取
- 5LDK
| 所在地 | 岡山県岡山市中区土田 岡山市中区土田リフォーム済中古住宅2,980万円 |
|---|---|
| 交通 | JR山陽本線東岡山駅 徒歩1,100m 徒歩14分 バス(宇野バス「土田」停 停歩2分) |
| 築年月 | 2004/11 | 新築/中古 | 中古 |
|---|---|---|---|
| 面積 | 130.83m² | 計測方式 | |
| バルコニー | 向き | 南 | |
| 建物階数 | 地上2階 | 部屋階数 | |
| 建物構造 | 木造 | ||
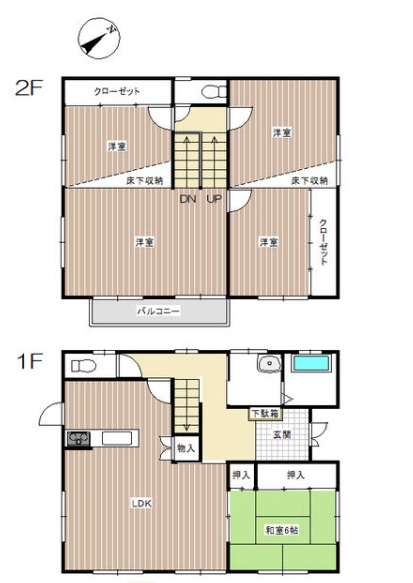
| 間取内容 | LDK1階 1室 和室6畳 1階 1室 洋室2階 4室 | ||
| 駐車場 | 空有 敷地内3台~4台駐車可 | 取引態様 | 仲介 |
| 引渡/入居時期 | 即時 | 現況 | 空家 |
| 地目 | 宅地 | 用途地域 | 第一種低層住居専 |
| 都市計画 | 市街化区域 | 地勢 | ひな段 |
| 土地面積 | 257.11m² | 土地面積計測方式 | 公簿 |
| セットバック | 無 | セットバック量 | |
| 建ぺい率 | 50% | 容積率 | 100% |
| 土地権利 | 所有権 | 接道状況 | 一方 |
| 接道方向1 | 南 | 接道間口1 | 14m |
| 接道種別1 | 公道 | 接道幅員1 | 6m |
| 位置指定道路1 | |||
| 周辺環境 | 竜之口小学校 約700m 竜操中学校 約2,800m | ||
| 設備・条件 | IHコンロ 三口コンロ システムキッチン カウンターキッチン 給湯 追い焚き 洗髪洗面化粧台 バス専用 シャワー 浴室乾燥機 ユニットバス 浴室1.6x2.0m以上 トイレ専用 バス・トイレ別 温水洗浄便座 床下収納 室内洗濯機置き場 TVドアホン 公営水道 排水下水 駐車場有 バルコニー フローリング オール電化 トイレ2箇所、収納スペース、複層ガラス、庭、勝手口、クロゼット2ヶ所、ダウンライト、土間、ダブルロックドア、ワイドバルコニー | ||
| 物件番号 | ezk004 | ||
| 自社物 | 状態 | 売出中 | |
岡山市中区土田にあるミサワホーム施工リフォーム済中古住宅です。
■内装リフォーム 場所:洗面所、浴室、トイレ、キッチン 時期:2025年2月 内容:洗面化粧台新設、浴室新設、トイレ新設、IHクッキングヒーター交換、全室クロス貼替、畳・襖貼替
■外装リフォーム 場所:外壁、屋根 時期:2025年2月 内容:外壁塗装、屋根塗装
内覧等をご希望の方は、086-425-5505までにお電話ください。
メールアドレスは、info@nissho1.jpです。
現地に待機しておりませんが、事前にご連絡くださればご案内可能です。土日祝または平日でもご案内可能です。ご連絡お待ちしております。
Loading...
※物件掲載内容と現況に相違がある場合は現況を優先と致します。













