スーパー徒歩10分(800m)、コンビニ徒歩10分(800m)と生活しやすい好立地!外壁・屋根全面塗装予定
- 価格
- 1,849万円
- 中古戸建
- 間取
- 3LDK
| 所在地 | 岡山県倉敷市酒津 倉敷市酒津リフォーム済中古住宅1,849万円 |
|---|---|
| 交通 | JR山陽本線倉敷駅 徒歩約1,600m 徒歩約23分 バス(両備バス「川入」停 停歩約9分) |
| 築年月 | 1987/12 | 新築/中古 | 中古 |
|---|---|---|---|
| 面積 | 85.22m² | 計測方式 | |
| バルコニー | 向き | 南 | |
| 建物階数 | 地上2階 | 部屋階数 | |
| 建物構造 | 木造 | ||
| 間取内容 | LDK約18畳 1階 1室 洋室約6畳 2階 1室 洋室約4.5畳 2階 2室 | ||
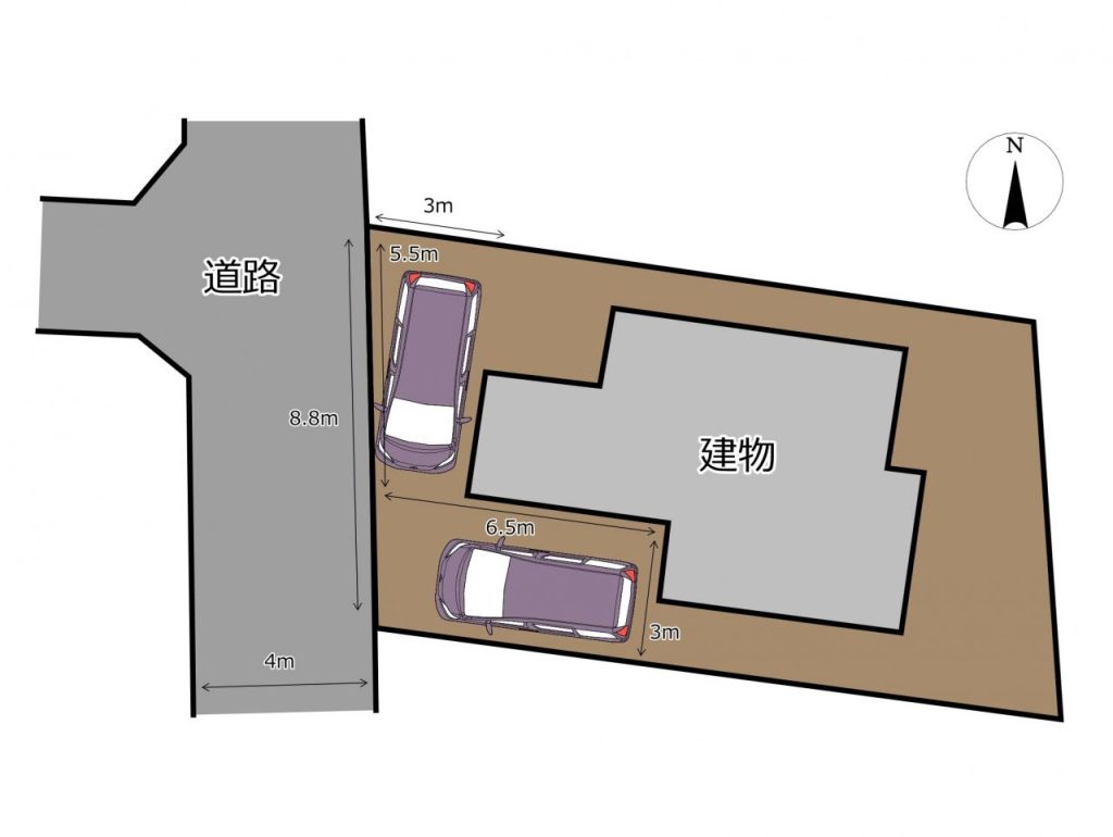
| 駐車場 | 空有 敷地内2台駐車可 | 取引態様 | 仲介 |
| 引渡/入居時期 | 相談 | 現況 | 空家 |
| 地目 | 宅地 | 用途地域 | 第一種低層住居専 |
| 都市計画 | 市街化区域 | 地勢 | 平坦 |
| 土地面積 | 133.95m² | 土地面積計測方式 | |
| セットバック | 無 | セットバック量 | |
| 建ぺい率 | 50% | 容積率 | 100% |
| 土地権利 | 所有権 | 接道状況 | 一方 |
| 接道方向1 | 北西 | 接道間口1 | 約8.8m |
| 接道種別1 | 公道 | 接道幅員1 | 約4m |
| 周辺環境 | 中州小学校 約2,300m 西中学校 約1,600m | ||
| 設備・条件 | ガスコンロ 三口コンロ システムキッチン カウンターキッチン 追い焚き 洗髪洗面化粧台 バス専用 シャワー 浴室乾燥機 ユニットバス 浴室1.6x2.0m以上 トイレ専用 バス・トイレ別 温水洗浄便座 室内洗濯機置き場 TVドアホン プロパンガス 公営水道 排水下水 駐車場有 バルコニー フローリング | ||
| 物件番号 | ktt071 | ||
| 自社物 | 状態 | 売出中 | |
倉敷市酒津にあるリフォーム済中古住宅です!
【リフォーム内容】
●内装工事
システムキッチン交換、ユニットバス交換、温水洗浄便座トイレ交換、洗面化粧台交換、玄関扉交換、フローリング上張り、クロス張替え、建具交換、雨漏り点検、漏水点検
内覧等をご希望の方は、086-425-5505または080-1928-8211までにお電話ください。
メールアドレスは、info@nissho1.jpです。
現地に待機しておりませんが、事前にご連絡くださればご案内可能です。土日祝または平日でもご案内可能です。ご連絡お待ちしております。
Loading...
※物件掲載内容と現況に相違がある場合は現況を優先と致します。














